
Charmant Studio Lumineux sous les Toits – Résidence de Standing avec Jardin Intérieur
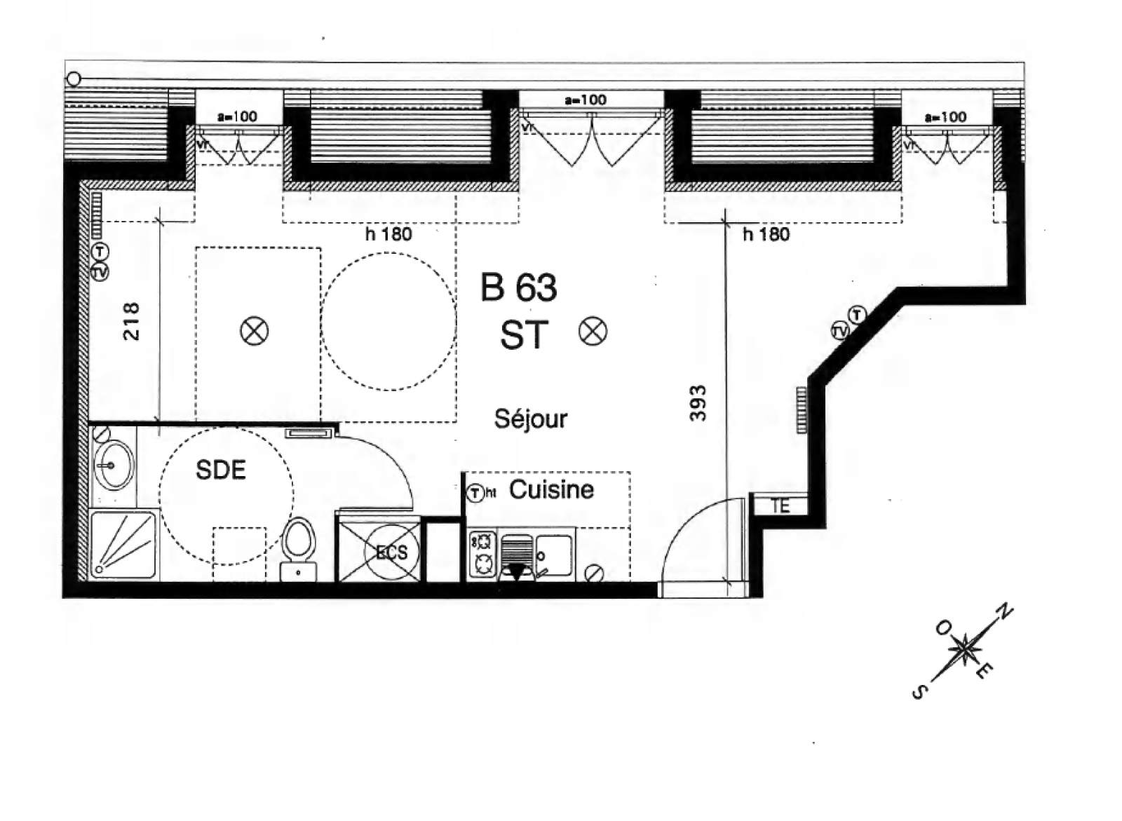
Le Plessis-Robinson (92350)Niché au dernier étage d’une résidence de standing sécurisée, ce studio de 35,82 m² Loi Carrez (et 42,42 m² au sol) vous séduira par son charme sous les toits, ses beaux volumes et sa luminosité exceptionnelle.
✨ Les atouts du bien :
Dernier étage, garantissant calme et absence de voisins au-dessus
Trois grandes fenêtres, véritables puits de lumière, offrant une ambiance chaleureuse et baignée de soleil tout au long de la journée
Volumes agréables sous pente avec des espaces optimisés
Résidence sécurisée de standing, bien entretenue, avec jardin intérieur commun, havre de paix au cœur de la copropriété
Une place de stationnement en sous-sol et une cave complètent ce bien.
Les informations sur les risques auxquels ce bien est exposé sont disponibles sur le site Géorisques
Caractéristiques du bien
Infos financières
La base légale du traitement repose sur l’intérêt légitime de l'Agence / du Réseau.
Elles sont conservées jusqu'à demande de suppression et sont destinées à l'Agence / au Réseau.
Conformément à la loi « informatique et libertés », vous pouvez exercer votre droit d'accès aux données vous concernant et les faire rectifier en contactant l'Agence / le Réseau.
Si vous estimez, après avoir contacté l'Agence / le Réseau, que vos droits « Informatique et Libertés » ne sont pas respectés, vous pouvez adresser une réclamation à la CNIL.
Nous vous informons de l’existence de la liste d'opposition au démarchage téléphonique « Bloctel », sur laquelle vous pouvez vous inscrire ici : https://www.bloctel.gouv.fr
Dans le cadre de la protection des Données personnelles, nous vous invitons à ne pas inscrire de Données sensibles dans le champ de saisie libre
Ce site est protégé par reCAPTCHA, les Politiques de Confidentialité et les Conditions d'Utilisation de Google s'appliquent.
Localisationdu bien
-
Commerces et santé
-
Loisirs
-
Ecoles
-
Transports
-
Pratique
Détails des diagnostics énergtiques
Montant estimé des dépenses annuelles d'énergie pour un usage standard est compris entre 670 € et 960 € . Prix moyens des énergies indexés sur les années 2021, 2022 et 2023 (abonnements compris).
